
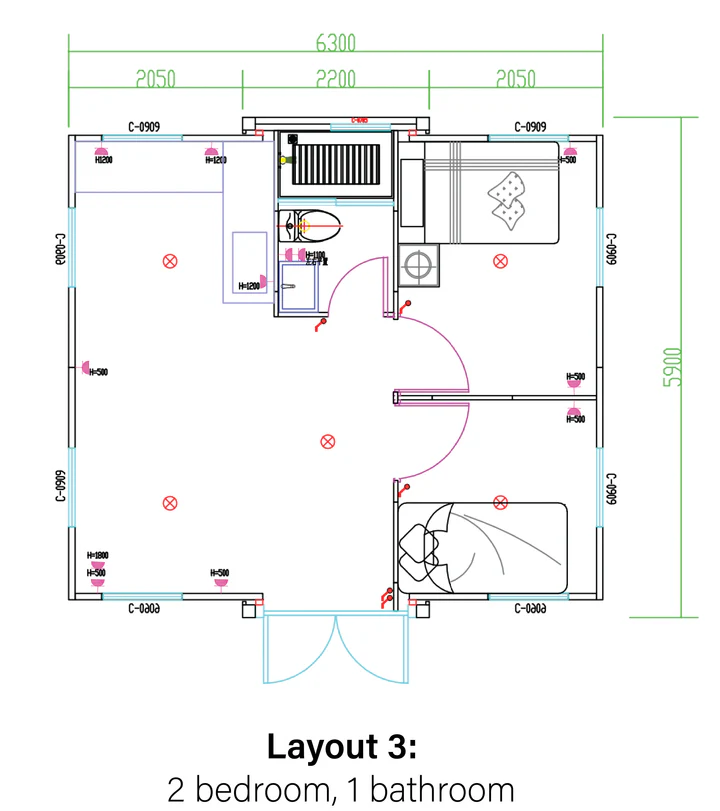
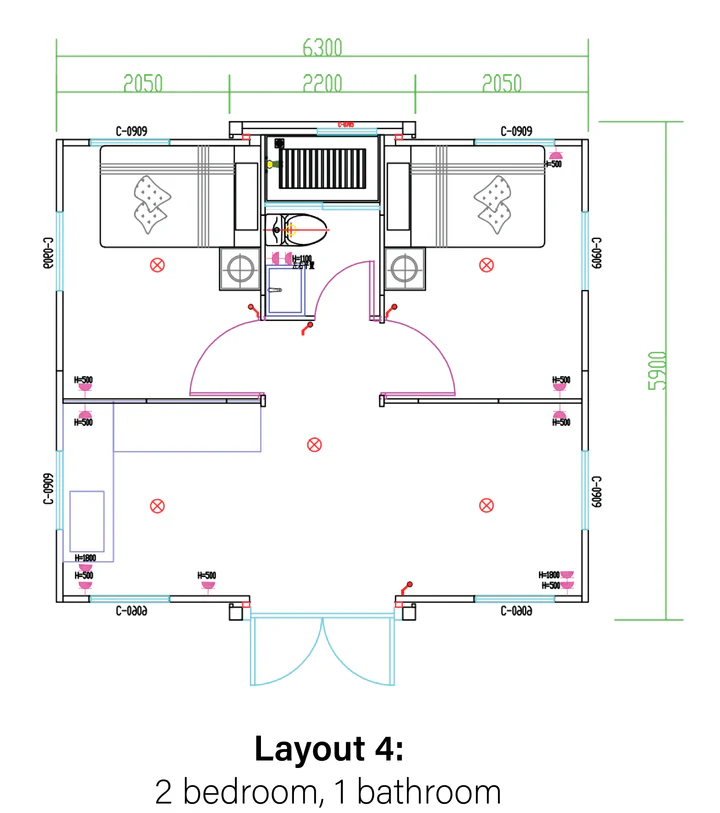
The Trident
A New Standard in Tiny Home Living
Welcome to The Trident, Next Gen Modern Living’s flagship tiny home that redefines what’s possible in compact, sustainable living. Designed for versatility and effortless style, The Trident blends smart design with premium finishes to create a living space that feels open, comfortable, and distinctly modern.
























